
大阪を中心に民泊/貸別荘施設を運営する株式会社LDKプロジェクト(所在地:大阪府中央区、代表:生田博之)は2025年2月1日(土)に大阪「千早赤阪村」に新しいグランピング施設「IZA GLAMPING千早赤阪村(イザ グランピング ちはやあかさかむら)」をプレオープンいたします。
《公式予約》https://go2iza.com/cavillage_prt
《Instagram》https://go2iza.com/url/prt_ins_go2

■千早赤阪村について

施設内リビング
今回新しく誕生した「IZA GLAMPING千早赤阪村(イザ グランピング ちはやあかさかむら)」は大阪市内から車で約1時間、「大阪唯一の村」と呼ばれる千早赤阪村にオープンしました。
この村は府内で最も自然豊かなエリアで、棚田百選にも選ばれた「下赤阪の棚田」や日本で二番目に登山者の多い「金剛山」などが有名です。また、南北朝時代の武将「楠木正成」ゆかりの地でもあり、歴史的な名所が数多く存在します。
そんな魅力的あふれる千早赤阪村ですが、先述した大阪市内だけではなく隣接する奈良市内や和歌山市内からも車で1時間とアクセスが非常に良いことで知られています。日帰りで遊びに行く事も可能です。

下赤阪の棚田

金剛山山頂

金剛山の滝 冬の氷瀑
金剛山ライブカメラ
■IZA GLAMPING千早赤阪村について

全景
今回、施設内には海外より取り寄せた40フィートの最新の大型トレーラーハウスを設置。直線と曲線でシンプルに構成された躯体はまるで近未来を想起させるデザインとなっています。自然の中に突如現れる近代建築は別荘という非日常の空間を作るのに最適です。前面がガラス張りになっているので自然の景観を室内にも取り入れる事ができ、空間に解放感を与えます。

リビングとベッドルーム

バルコニーのキッチンダイニングスペース
バルコニー側にはBBQスペースやジャグジーを設置。屋根があるので、雨の日でも半屋外で楽しんでいただけるのも大きな特徴です。

ジャグジー
・プライベートガーデン、サウナ、施設内アクティビティについて

「棚田サウナ」
施設全面にはひろびろとしたプライベートガーデンがあり、サウナやテント、ハンモックにバトミントンと様々なアクティビティをご用意しております。(※一部備品有料)
ガーデン内には下赤阪の棚田をイメージした「棚田サウナ」を設置。サウナ小屋は村の木材を一部使用したオリジナルサウナとなります。

サウナ内部 完全オリジナル設計
サウナのすぐ隣には水風呂とシャワーがあり、温まった体をいつでもクールダウンする事ができます。

サウナ室の横にはシャワーと水風呂を設置

ハンモック

ハンモック

バトミントン

室内でも楽しめる
※一部有料
・水廻りについて

ジャグジー

室内シャワールームとパウダールーム
バルコニーには数名が一緒に入れるジャグジーを設置しており、BBQやサウナをしながら同時に入浴を楽しむ事が可能です。また、室内にはシャワールームを別途用意しているので、人目を気にせず個別で入浴したい方も安心です。


シャンプーやコンディショナーは他のIZAシリーズ同様POLAで統一、ドライヤーはパナソニックのものを設置しています。女性目線でセレクトしたアメニティは非常に好評で、旅行時のヘアケアのクオリティが落ちるという点を考慮し厳選したアメニティを用意しています。
・寝室について

主寝室

リビング2段ベッド
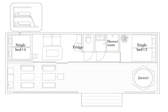
シングルベッドが計6台あり、プライベートの寝室が1部屋ございます。また外のプライベートガーデンにはテント設置が可能となっており、6名以上でご利用の場合はテント泊する事も可能です。
(主寝室:シングルベッド2台/リビング:シングルベッド4台)
ベッド側面はガラス張りになっており、千早赤阪村の自然を感じながらゆっくりお休みいただく事が可能です。



ご予約お待ちしております。
■間取り図

施設全体図

建物内
<当施設の概要>
●施設名:IZA GLAMPING 千早赤阪村(イザ グランピング ちはやあかさかむら)
東側:IZA GLANMPING 千早赤阪村 昴(すばる)
西側:IZA GLANMPING 千早赤阪村 昴(きらめき)
●住所 :〒585-0055 大阪府南河内郡千早赤阪村東阪255-5
●アクセス :大阪市内から車で約1時間 南海高野線/近鉄長野線「河内長野」駅から車で約16分
※各施設ごとに車3台まで駐車可能
●料金プラン:47,000円~
《公式予約》https://go2iza.com/cavillage_prt
■サウナ付き貸別荘 IZAとは

IZA(イザ)は「遊ぶ・感じる・整う」をコンセプトとした、プライベートサウナ付きのリゾート型貸別荘ブランドです。こだわりの設備、落ち着いたインテリアや家具 プライベートのサウナやジャグジーなど、都会から離れて非日常的なリゾート空間が体験できます。家族や恋人 友達同士での旅行はもちろん、社内研修やワーケーション 小規模イベントなど、幅広い用途でご利用いただけます。
《IZAシリーズ公式予約》https://go2iza.com/prs_iza_hp
《Instagram》http://go2iza.com/url/prt_ins_go2
■わたしたちLDKプロジェクトについて

人生に綴られる ひとときをつくる
宿泊は「お客様の時間をお預かりして、快適で価値のある空間とサービスを提供すること」だと私たちは考えています。「また泊まりたい」と思ってもらえる施設をつくりたい。 設備やサービス、インテリア、清掃にいたるまで、 手を抜かず、心をこめる。訪れた人の「人生」 という物語の1ページになるような思い出に残る時間と体験ができる宿泊施設を提供します。
企 業 名 : 株式会社LDKプロジェクト
所 在 地 : 〒540-0017 大阪府大阪市中央区松屋町住吉6-26 eninal MACCHAMACHI 2F
代 表 者 : 代表取締役 生田博之
事業概要: 民泊施設の運営管理、レンタルスペースの運営管理、不動産賃貸業、清掃業務、貸別荘運
営、サウナ事業
《公式HP》https://ldk-pjt.com/prs_ldk_hp
【民泊運営代行に関するご相談やご質問先】
使用していない部屋を活用したい、民泊に興味があるけれど知識もなく不安、実際に自分でもできるか確認したいなど、些細な相談でもかまいません。業界をリードする大阪で長年民泊を営むLDKプロジェクトが丁寧にお答えします。お気軽にどうぞ!
《民泊代行ページ》https://ldk-pjt.com/ldk_daiko
【本件に関するお問合わせ・取材等のお申込み先】
株式会社LDKプロジェクト 運営管理担当
テレビや雑誌、新聞社様からの取材大歓迎です。
お気軽にお問合せくださいませ。
E-mail:marketing.div@ldk-pjt.com









