
グランピング施設「LOCALINO STAY AOSHIMA(ロカリノ ステイ 青島)」
合同会社GOTO(本社:大阪市淀川区、代表社員:高橋知也)は、2024年7月1日(月)、宮崎県で人気の観光スポット「青島エリア」に、専用庭とプライベートサウナを有した3棟のコテージからなるグランピング施設「LOCALINO STAY AOSHIMA(ロカリノ ステイ 青島)」を本格開業します。
「LOCALINO STAY AOSHIMA」の特長
特長は次の通りです。
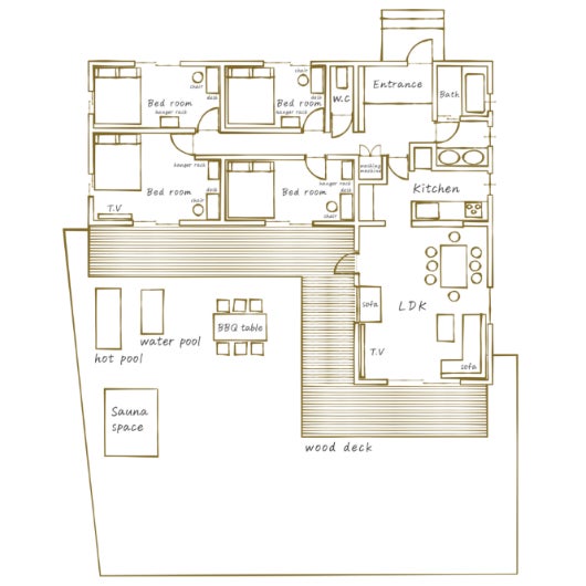
(1) 全棟にサウナが設置された1棟貸切のプライベートヴィラ
全ての棟には、広々とした専用庭(パティオ)を有し、専用庭には本格サウナを設置しています。コテージの定員はそれぞれ、8名、8名、5名で最大21名宿泊できます。各敷地内には2台まで駐車できる駐車スペースを用意しています。

各ヴィラの専用庭にはプライベートサウナを設置
(2) 九州以外からもお手軽に楽しめるグランピング施設
宮崎ブーゲンビリア空港から車で約15分と、首都圏からでも2時間ほどで自然豊かな当施設にアクセスできるので 、九州地方以外のお客さまにも便利な立地です。
全棟にBBQグリルを設置しており、宮崎の食材(宮崎牛や地鶏、地元の海産物、新鮮な野菜など)を調達し、専用庭でBBQが楽しめます。屋内のキッチンにはIHグリルと調理器具も揃っており、音響設備も充実しているので、大画面テレビと高音質なスピーカーで映画やお好きな音楽鑑賞しながら、室内での時間も楽しむことができます。アメニティも取り揃えているので、少ない荷物で充実の青島ステイを満喫できます。

コテージA棟の間取り図
(3) 青島の魅力を存分に楽しめるアクティビティ
施設から海岸までは徒歩4分、多くのサーファーにも愛される青島の海では、サーフィンだけでなく、シュノーケリングやシーカヤックなど、さまざまなアクティビティを楽しめます。施設では、地元のレジャーインストラクターとパートナーシップを結び、アクティビティの案内もしています。
■施設をオープンさせた背景
昭和30~50年代にかけて新婚旅行ブームとして人気のあった宮崎県の青島は、その後低迷期を重ねていましたが、パワースポットの青島神社を中心として、令和になってから魅力的な施設が続々とオープンし、国内外に人気が高まっています。
青島の自然豊かな魅力をいろいろな人に知ってもらうため、お手軽に遊びに来てもらえるグランピング施設をオープンしました。
■使い方や利用シーン
東京から飛行機で1時間45分、大阪からは1時間ほど、そして宮崎ブーゲンビリア空港から車で約15分の当施設は首都圏や関西圏からもアクセスは抜群です。
また3棟のヴィラは、全室ベッドルーム、調理器具や食器、冷蔵庫などの電化製品も完備したダイニング付きキッチンを設置しているので、少ない荷物で気軽にグランピングを楽しめます。
全室、サウナ付きの専用庭とパティオが付いたヴィラなので、各室のプライバシーが守られ、ご家族やお友達とのんびり自分の時間を楽しめます。
青島は観光スポット以外にも、日南海岸沿いに釣りやマリンスポーツも楽しめます。リゾートとしての長期滞在にもご利用いただけます。

■今後の展開
今後は、国内外にも積極的なPR活動をすすめ、夏季休暇中の稼働率100%を目指します。
【施設概要】
名称: LOCALINO STAY AOSHIMA(ロカリノ ステイ 青島)
開業日: 2024年7月1日(月) (同年5月よりプレオープン)
価格: 81,000~117,000円(1棟あたり、税別)
施設・収容人数:ヴィラ3棟 最大収容人数は21名
ヴィラA:定員8名(クィーンベッド1台×4寝室)
ヴィラB:定員8名(クィーンベッド1台×4寝室)
ヴィラC:定員5名(クィーンベッド1台、セミダブルベッド×3寝室)
予約: Airbnb、Booking.com、自社HP
特徴: ◆全室サウナ付き、1棟貸切のプライベートヴィラ
◆お手軽に楽しめるグランピング施設
◆青島の魅力を存分に楽しめるアクティビティ
公式Webサイト:https://localino-stay.com/
宿泊に関するお問い合わせ先: TEL.06-7167-6048
【会社概要】
社名: 合同会社GOTO
代表: 代表社員 高橋知也
本社所在地: 大阪市淀川区十三本町2-2-12-903
URL: https://goto-jp.co/
設立年: 2020年12月
資本金: 100,000円
従業員数: 20人
事業内容: 民泊施設、ホテル、旅館及び簡易宿所の運営









